ACCUEIL
À PROPOS
FORMATIONS
CONTACT
PARTICULIERS
TERTIAIRE
COLLECTIFS
ERP
Plus
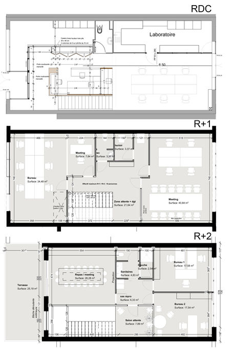
SURÉLÉVATIONLocalisation : Bron (69500)Phase : PC obtenuLivraison : 2024Maître d'ouvrage : PrivéSurface : 85 m²